Prodej - rodinný dům
Prodej rodinného domu 4+1
Se zahradou, pozemek 1 128 m²
Dobronín u Jihlavy
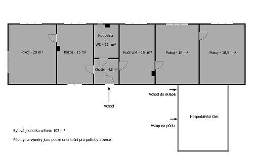
Nabízíme k prodeji samostatně stojící, prostorný rodinný dům 4+1 se sklepem, který se nachází v obci Dobronín u Jihlavy.
Dům je určen k rekonstrukci. Není však vlhký, většina zdiva je odizolována v úrovni podezdívky.
Současná dispozice umožňuje dům rozdělit na dvě menší bytové jednotky, přestavět jej na bezbariérové bydlení, nebo vytvořit prostorné rodinné bydlení.
Za domem se rozprostírá pozemek se skálou, která vytváří dokonalé soukromí. Může být ideální pro vášnivé skalničkáře.
Vedle domu se nachází rovná plocha, vhodná pro vybudování zahrady nebo parkování. Před domem je zahrádka.
Dobrá dostupnost autem - 15 min. do Jihlavy a 7min. do Polné. V docházkové vzdálenosti se nachází železniční stanice a autobusová zastávka, která zajišťuje pohodlné dopravní spojení do Jihlavy i bez nutnosti vlastního auta.
V Dobroníně je základní škola, mateřská škola, volnočasový areál, spolky, obchody aj.
S financováním pomocí hypotéky Vám rádi pomohou naši specialisté.
Kontaktujte nás a přijďte na prohlídku. Těšíme se na Vás!
Pokud Vás nabídka zaujala, rád Vám nemovitost ukážu a odpovím na Vaše další dotazy.
Zavolejte na tel.: 721 656 891
nebo pište: sulc@bezpobocky.cz
Cena: 3 250 000 Kč
Včetně provize a kompletního právního servisu.

Vy si užívejte peníze a spokojenost z prodané nemovitosti. Starosti s jejím prodejem nechte na mě.
Pokud hledáte někoho, kdo vás provede realitním trhem s empatií, profesionalitou a osobním přístupem, jsem zde pro Vás.
Působím jako certifikovaný odhadce a zároveň realitní makléř pro realitní kancelář Bezpobocky.cz.
Děkuji za Váš čas - Bc. Karel Šulc.
IČO: 62700502
Zapsán v živnostenském rejstříku.
Předmět podnikání: Oceňování majetku pro věci nemovité a realitní zprostředkování.
Působím v realitní kanceláři Bezpobocky.cz.

Jsme Zlatým členem Realitní komory České republiky.
